LIVET - 宮崎のオーダー家具、宮崎のオリジナル建具

order furniture & original door

  • News - ニュース
  • About Livet - リーベットとは
  • Access Map - アクセス
  • Works - 制作事例
  • Contact us - お問合せ
  • Blog - ブログ

カテゴリ事例

収納(213)

リビングボード(5)

オーダーキッチン(63)

キッチン収納(95)

AVボード(69)

テーブル、カウンター(184)

洗面所(68)

オリジナル建具(359)

サッシ工事(26)

その他(217)

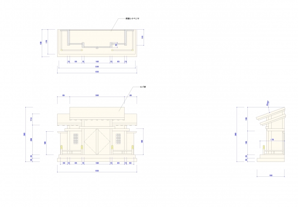
製作図面(219)

WORKS

GT邸

宮崎 宮崎市

project:2013

  • 神徒壇
  • 神徒壇
  • 製作図面
  • 製作図面

床の間だった所に神徒壇を取り付けました。

Production : LIVET

[戻る]

Copyright(c) 2011 LIVET. All right reserved.