収納(213)
リビングボード(5)
オーダーキッチン(63)
キッチン収納(95)
AVボード(69)
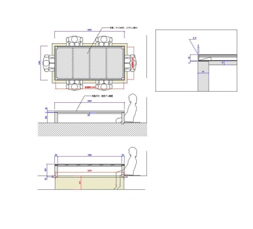
テーブル、カウンター(184)
洗面所(68)
オリジナル建具(359)
サッシ工事(26)
その他(217)
製作図面(219)
宮崎県宮崎市清武町
project:2011
新築工事のオーダー建具、家具をデザインして製作。サッシ、既製品家具、建具を納品。
Design : LIVET
Production : LIVET